店舗兼住宅のリニューアル

店舗兼住宅のリニューアル

店舗・オフィス

飲食店をスナックへ将来は昼カフェとしても使える2Way空間へ

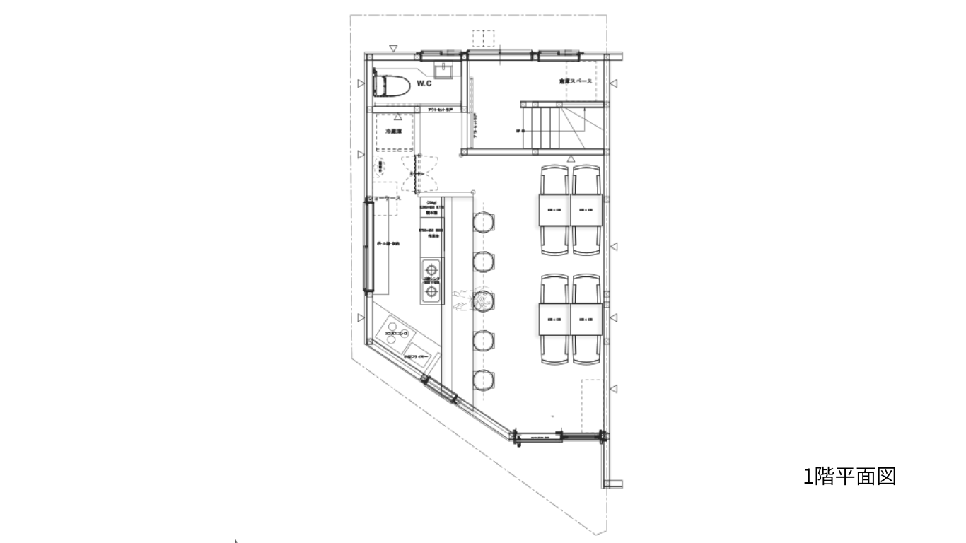
築年数の経過した2階建ての長屋を、1階は飲食店舗、2階は住居スペースとしてリニューアルしました。
店舗部分は新たにスナックとして営業するための改装ですが、将来的には昼間のカフェ営業やランチ営業にも対応できる店舗をコンセプトに設計しています。

■ 明るく居心地の良い店内デザイン
店内は夜の営業だけでなく昼の営業にも合うよう、施主様の希望で、やや明るめのトーンでデザインしています。
天井には木目調クロスを採用し、温かみのある落ち着いた雰囲気に仕上げています。
カウンターの立ち上がり部分には、お客様のお気に入りのタイルを使用。
照明との相性もよく、店舗のアクセントとなる印象的なポイントになっています。

■ カウンターとテーブル席のバランス
店内はカウンター席とテーブル席をバランスよく配置。
スナックとしての使いやすさだけでなく、昼間のカフェ利用やランチ営業にも対応できるレイアウトとなっています。

■ 古い建物の補修・補強も実施

築年数の経過した建物のため、解体後に一部構造部の腐食が確認されました。
そのため補修および構造補強を行い、安全性を確保したうえでリニューアルを実施しています。

※店舗兼住宅として施工(施工事例では1階店舗部分を中心に掲載しています)

構造木造(在来工法)
面積1階 30㎡/2階 30㎡
工期約2ヶ月
施工費約1,200万円

GALLERY/ ギャラリー

FB INSTA
©Copyright 2012 YU-KI HOUSE. ALL right reserved.